14437
This is a boutique brand new building of only 2 big apartments, an exclusive apartment with a garden and a penthouse.
LOCATION
Located in the modern Agios Athanasios district, the project embraces urban serenity and access to major life services including schools, health centers and shops.
Placed on the majestic hills, it offers its residents a beautiful view of the Mediterranean Sea and makes them fall in love with its quiet little streets. The area is not built up too densely which allows for admiring long walks and a friendly environment around. Another advantage is a well-developed infrastructure that contributes to a number of vital facilities nearby including private and public schools (along with Foley’s, regarded as one of the best in the region), kindergartens, sports centres, restaurants, pharmacies and many others.
The city centre is only a seven minute drive, likewise, the main highway of the island is only five minutes away. All of the above have cemented Agios Athanasios’ reputation as the finest to settle down and immerse yourself in the peaceful atmosphere.
DESCRIPTION
Green surroundings and concise interior design, create aesthetic and functional spaces to enjoy comfort and relaxation. Both apartments have 2 bedrooms, a bathroom, an open-plan kitchen/living room and an uncovered veranda with a splendid sea and city view. A cozy roof garden accompanies the laconic architecture lines of the penthouse while the apartment impresses with its keen detailing and an exquisite garden outside.
The development leads to a luxury, sophisticated ambiance that accommodates all your personal wishes. Thoughtfully designed, it conveys high-end development of contemporary style using modern technologies and environmentally friendly materials. Classy colours like pastel grey and white, combined with the natural tones of the wood, create an elegant blend within the spacious interior.
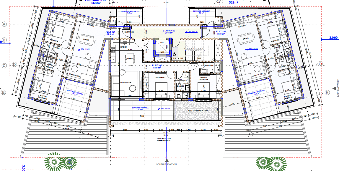
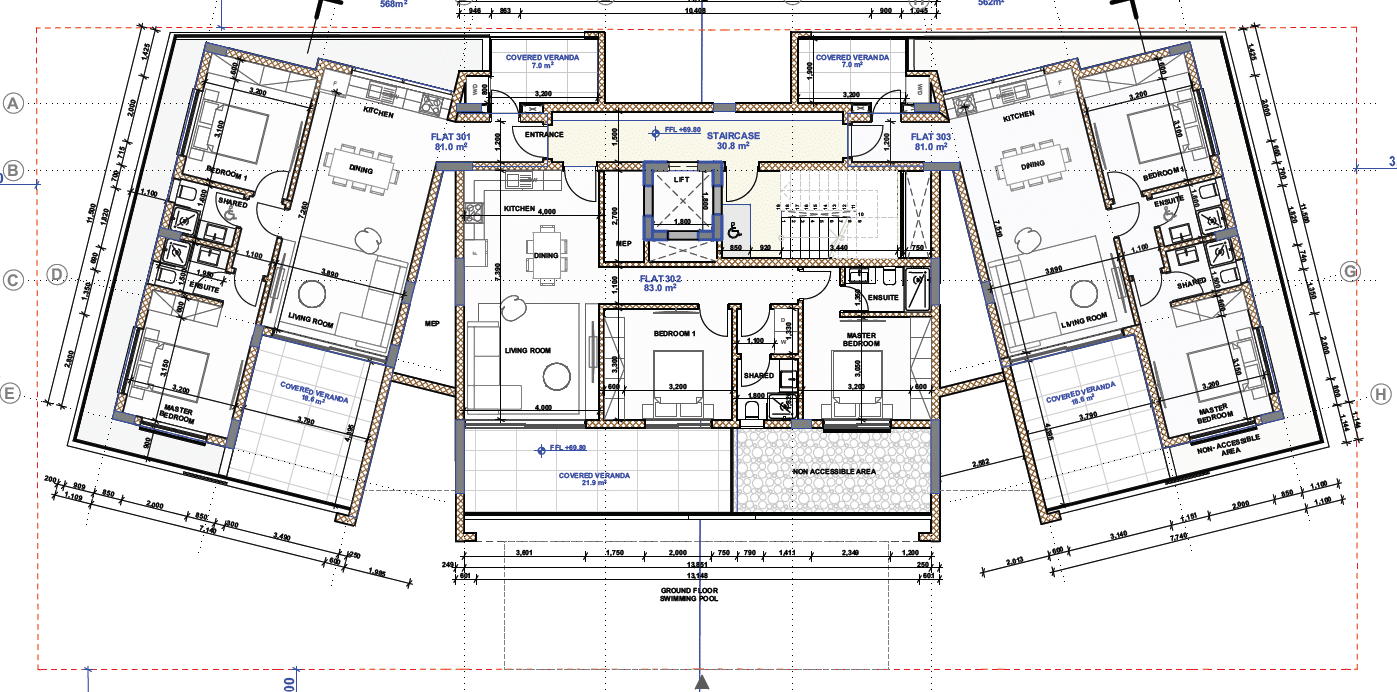
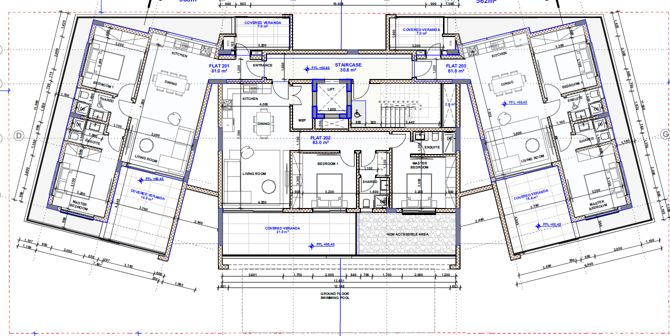
Each apartment has 2 floors. One apartment is a penthouse with a roof garden and the other one is a ground floor with a private garden. Both are 2+1 bedroom art-designed projects.
Apartment with Garden
Internal area: 93.40 + 144.80 (basement)
Covered veranda: 8.60m2
Uncovered veranda: 16.20m2
Garden: 40 m2
Total: 263 sqm
Penthouse
Internal area: 94.5 + 36.7 (roof)
Covered veranda: 6.9m2
Total 197m2
Compare listings
Compare